CLAYTON HOMES-EVANS

HUDSON

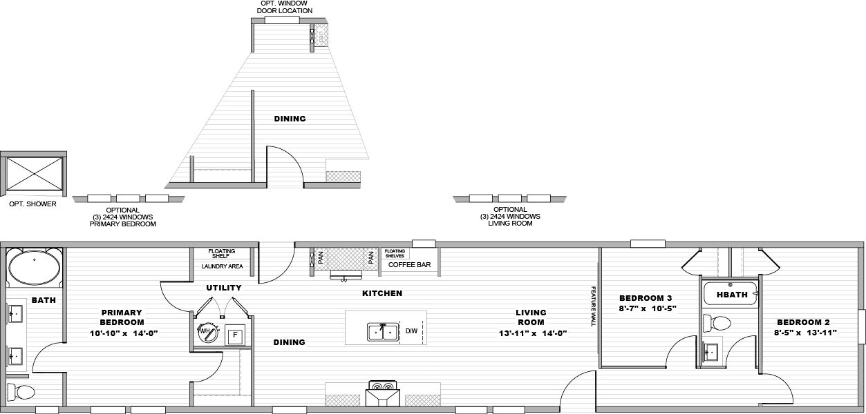
  • 45CEJ16763AH

  • 3 beds

     • 2 baths

  • 1,140 sq. ft.

The HUDSON Exterior. This Manufactured Mobile Home features 3 bedrooms and 2 baths.
The HUDSON Living Room. This Manufactured Mobile Home features 3 bedrooms and 2 baths.
The HUDSON Kitchen. This Manufactured Mobile Home features 3 bedrooms and 2 baths.
The HUDSON Floor Plan. This Manufactured Mobile Home features 3 bedrooms and 2 baths.
(970) 339-5500

Monday - Friday: 9am to 5pm

Saturday: 9am to 5pm

Sunday: Closed

CLAYTON HOMES-EVANS

3455 W. SERVICE RD
EVANS, CO 80620

Our home building facilities invest in continuous product and process improvements. Plans, dimensions, features, materials, specifications, and availability are subject to change without notice or obligation. Renderings and floor plans are representative likenesses of our homes and many differ from actual homes. We invite you to tour a Home Center near you and inspect the highest value in quality housing available or call (970) 339-5500 to speak with a Home Consultant. ©2026, CMH. All rights reserved.